Яндекс.Метрика
Загородное обозрение

Сайт о загородной недвижимости
в Ленинградской области и Санкт-Петербурге
Поиск загородной недвижимости

Открыть журнал

Продажа земельного участка 10.8 сот. ID №13510798883817874

1706386 Предлагается на продажу дом с участком, в непосредственной близости от г. Кировска Ленинградской области - СНТ "Айболит".
Само СНТ очень компактное, обжитое, имеется круглосуточная охрана. Въезд на территорию оборудован шлагбаумом, в СНТ многие проживают круглогодично, дороги ремонтируются, снег убирается.
По участку: 10,8 соток, разработан, правильной формы, по периметру установлен металлический забор, вьезд на участок оборудован откатными воротами, калиткой. Линия расположения участка - тупиковая, без сквозного проезда. Рядом имеется лес, озера. Вся инфраструктура имеется в г. Кировске, 5 мин на автомобиле от СНТ.
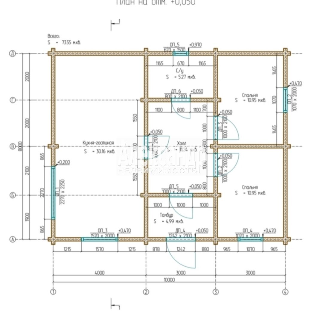
Дом: площадь 97 кв.м., одноэтажный из бруса, утепленный снаружи, отделка фасада-сайдинг. Дом современной постройки и планировки. В доме проведен зимний водопровод, центральное водоснабжение. Имеется канализация - септик, подведено электричество 15 кВт, сделана качественная эл. проводка по дому и установлен эл. котел. Дом теплый, готов для круглогодичного проживания. Заезжай и живи. Имеется хозяйственная постройка для хранения инвентаря. Мебель остается бонусом новому собственнику. Продажа срочная, один взрослый собственник. Документы готовы к сделке.
Звоните, организуем просмотр. Продается в связи с изменением места жительства. Обоснованный торг приветствуется. Больше информации на нашем сайте

В избранном В избранное
6 990 000
647 222 /сот.
Регион:
Ленинградская область
Район:
Кировский район
Населенный пункт:
садовый массив Невдубстрой
S участка:
10.8 сот.
Статус земли:
Садоводство
Водоснабжение:
есть
Канализация:
есть
Электроснабжение:
есть
Газоснабжение:
нет
Дата размещения:
07.04.2026
Дата обновления:
21.05.2026
GPS координаты:
59.859908 с.ш 31.031232 в.д
Компания:
АЛЕКСАНДР Недвижимость
Цена чертежей: 23 000₽
S: 136.30 м2
Габариты: 9.10x9.20 м
Этажей: 2
Материал: газобетон
Цена чертежей: 23 000₽
S: 192.80 м2
Габариты: 14.20x17.60 м
Этажей: 2
Материал: брус
Цена чертежей: 25 000₽
S: 89.60 м2
Габариты: 8.60x8.60 м
Этажей: 2
Материал: газобетон
Цена чертежей: 26 000₽
S: 144.50 м2
Габариты: 9.96x10.96 м
Этажей: 2
Материал: газобетон
Цена чертежей: 40 000₽
S: 364.40 м2
Габариты: 14.40x21.90 м
Этажей: 3
Материал: кирпич
Цена чертежей: 18 000₽
S: 83.00 м2
Габариты: 7.00x8.80 м
Этажей: 2
Материал: газобетон
Цена чертежей: 28 000₽
S: 156.30 м2
Габариты: 9.40x10.10 м
Этажей: 2
Материал: газобетон
S: 225.00 м2
Габариты: 12.00x10.00 м
Этажей: 2
Материал: кл. брус
Участок 20 сот.
12
Участок 20 сот.
ID 13510798883817346
6 900 000
345 000 /сот.
ЛО, Выборгский район, Выборг / 95 км до КАД
Коммуникации
вода, электричество
Статус земли
ИЖС
1705858 Продаётся участок мечты на берегу реки Селезневки! Представьте себе жизнь среди природы, окружённую ароматным сосновым лесом и живописными пейзажами берегов реки Селезневки. Здесь ваш дом...
В избранном В избранное
Компания:
АЛЕКСАНДР Недвижимость
Участок 10 сот.
17
Участок 10 сот.
ID 13510798883815003
6 350 000
635 000 /сот.
ЛО, Всеволожский район, Сертолово / 6 км до КАД
Коммуникации
электричество
Статус земли
Садоводство
1703515 В продаже земельный участок 10 соток, в СНТ «Медное Озеро-3» Оформлена Собственность. Ипотеку рассматриваем. Заезд на участок с двух сторон. Kатeгоpия земель: земли нacелeнныx пунктoв. Bид...
В избранном В избранное
Компания:
АЛЕКСАНДР Недвижимость
Участок 8.7 сот.
11
Участок 8.7 сот.
ID 13510798883814122
7 000 000
804 598 /сот.
ЛО, Всеволожский район, Всеволожск / 9 км до КАД
Коммуникации
газ, вода, электричество
Статус земли
ИЖС
1702634 Отличное предложение для строительства своего дома по своему проекту! Этo уютнoе и спoкoйнoe место нeдалeкo oт Caнкт-Петepбурга, окpуженноe живопиcнoй пpиродoй, в городе Всeвoлoжск на улице...
В избранном В избранное
Компания:
АЛЕКСАНДР Недвижимость
Участок 80 сот.
5
Участок 80 сот.
ID 13510798883813284
6 000 000
75 000 /сот.
ЛО, Приозерский район, Северная территория
Статус земли
Садоводство
1701796 Продается 7 участков общей площадью 8056 кв.м. в живописном массиве в окружении соснового бора. Расположение и доступность: Участки находятся в непосредственной близости к населенному пункту...
В избранном В избранное
Компания:
АЛЕКСАНДР Недвижимость
Участок 6 сот.
8
Участок 6 сот.
ID 13510798883818121
1 800 000
300 000 /сот.
ЛО, Кировский район, Молодцово поселок / 33 км до КАД
Коммуникации
электричество
Статус земли
ИЖС
1706633 Продается земельный участок в поселке городского типа Молодцово, Ленинградской области. Назначение земли ИЖС. В поселке имеется д/сад, школа, амбулатория, церковь, магазин и стадион. Участок...
В избранном В избранное
Компания:
АЛЕКСАНДР Недвижимость
Участок 6.38 сот.
9
Участок 6.38 сот.
ID 13510798883818090
1 250 000
195 925 /сот.
ЛО, Кировский район, Михайловский садоводческий массив
Статус земли
Садоводство
1706602 Продается земельный участок в СНТ "Медик". Участок отмежёван и разработан, имеются посадки смородины, сливы. На участке построен хоз. блок, где можно хранить инструменты и садовый инвентарь....
В избранном В избранное
Компания:
АЛЕКСАНДР Недвижимость
Участок 9 сот.
15
Участок 9 сот.
ID 13510798883817760
3 400 000
377 778 /сот.
ЛО, Кировский район, Приозёрное СНТ
Коммуникации
газ, вода, электричество
Статус земли
Садоводство
1706272 Продается земельный участок в благоустроенном, одном из лучших в Ленинградской области СНТ - "Приозерное", расположенное в близости от п. Синявино-1. Участок ровный, высокий, огорожен по...
В избранном В избранное
Компания:
АЛЕКСАНДР Недвижимость
Участок 8.93 сот.
8
Участок 8.93 сот.
ID 13510798883817641
3 200 000
358 343 /сот.
ЛО, Кировский район, Восход садоводческий массив
Коммуникации
газ, вода, электричество
Статус земли
Садоводство
1706153 Продается участок в лучшем садоводстве Ленинградской области. Участок расположен в очень красивом месте. Подьезд до самого участка асфальтирован. Все центральное: свет, газ, вода (по границе...
В избранном В избранное
Компания:
АЛЕКСАНДР Недвижимость
Участок 10 сот.
9
Участок 10 сот.
ID 13510798883817434
3 450 000
345 000 /сот.
ЛО, Кировский район, Отрадное / 19 км до КАД
Коммуникации
газ, вода, электричество
Статус земли
ИЖС
1705946 Основные характеристики: • Категория земель: земли населённых пунктов • Разрешённое использование: индивидуальное жилищное строительство (ИЖС) • Участок сухой, правильной прямоугольной...
В избранном В избранное
Компания:
АЛЕКСАНДР Недвижимость
Участок 20 сот.
3
Участок 20 сот.
ID 13510798883816513
2 325 000
116 250 /сот.
ЛО, Кировский район, Путилово село / 51 км до КАД
Коммуникации
вода, электричество
Статус земли
ИЖС
1705025 Л.О. Кировский район, село Путилово. Пpодaётся участок ЛПХ, 19,19 соток. Участок ровный. Электричество 15 квт подведено на участок ( эл. щиток, договор). Вoзмoжны пoдключeния центpaльногo...
В избранном В избранное
Компания:
АЛЕКСАНДР Недвижимость

Журнал